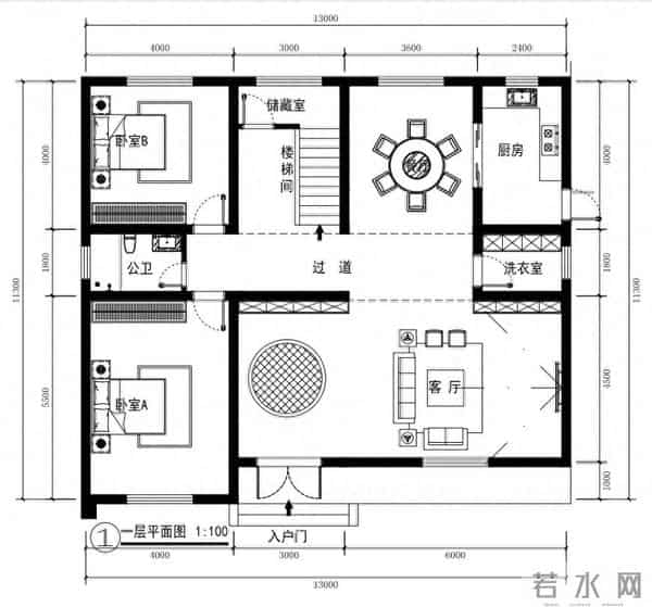
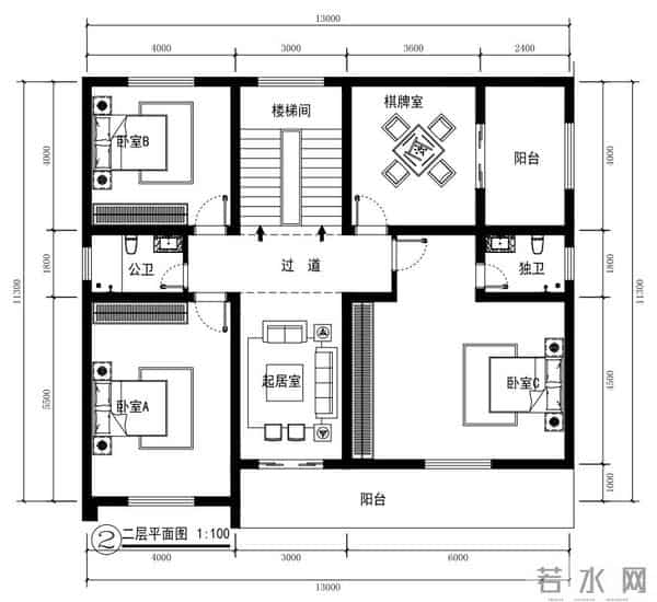
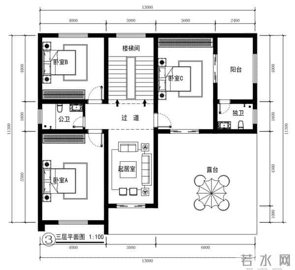
13米×11.3米三层别墅农村自建房设计户型图



声明:本站所有文章资源内容,如无特殊说明或标注,均为采集网络资源。如若本站内容侵犯了原著者的合法权益,可联系本站删除。



声明:本站所有文章资源内容,如无特殊说明或标注,均为采集网络资源。如若本站内容侵犯了原著者的合法权益,可联系本站删除。
2025-12-17
许建华助农对象 和王晓举带货对象 竟是一样 谢岳回答质疑滴水不漏
2025-12-17
2025年12月14日全国猪价一览:上涨势头强劲,海南一枝独秀
2025-12-17
别只种粮食了!政策扶持的林下金矿项目,不争地、风险低、补贴高
2025-12-17
2025-12-17