金华这个大村,规划发布!在村庄北侧规划1处邻里中心
12月11日,金华市婺城区白龙桥镇龙蟠村详细规划公示。

金华市婺城区白龙桥镇龙蟠村详细规划公示说明
一、规划范围及期限
1.规划范围:分为村域规划范围和居民点规划范围两个层面。村域规划范围是指龙蟠村行政管辖范围:用地组成主要为 农村宅基地、工业用地、耕地、水域、道路等,村域规划面积 约129.58公顷。
居民点规划范围是指龙蟠村居民点及周围需控制的区域: 规划面积约12.00公顷。
2.规划期限:规划基期年为2025年,规划期限为2025-2035年。村庄规划到期后,若无重大变故,规划可继续实施。
二、规划原则
规划先行,注重实施;因地制宜,彰显特色;尊重民意, 多方协作;多规融合,生态宜居;简明规范,通俗易懂。
三、发展目标及定位
依托自身区位条件和自然人文资源优势,以水、田为基 底,通过村庄整治、景观塑造、产业开拓,将龙蟠村建设成为 三产融合发展的特色活力乡村。
四、规划主要内容
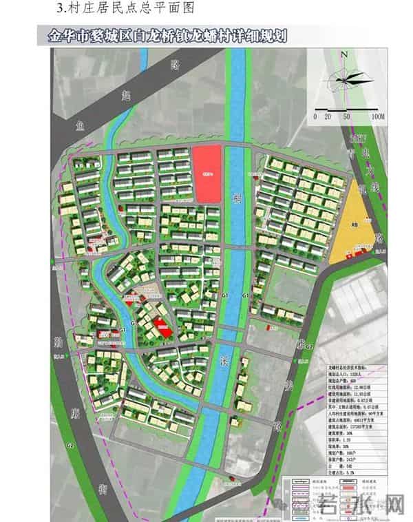
1.人口规模:规划村庄总人口1328人。
2.用地规模:规划区总用地129.58公顷,村庄规划红线面积12.00公顷。
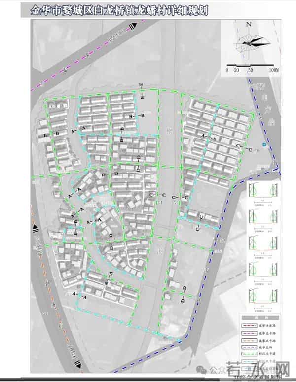
3.整体空间结构:规划结合龙蟠村地域特征和经济发展水 平,协调村域用地需求,合理布局、科学规划村庄空间结构, 形成“一心,两轴,四区”的总体空间结构。
一 心:综合服务中心,为综合公服配套空间。
两 轴:分别为沿规划街区路网形成的推动生产生活发展的 村庄发展轴和沿桐溪打造的串联村庄各节点的滨水景观轴。
四 区:新村建设区、旧村改造区、环境提升区、公共服务区。
五、村庄用地布局
村庄总用地129.58公顷,其中建设用地114.18公顷,包含 居住用地、商住用地、交通运输用地、公用设施用地、绿地与 开敞空间用地、工矿用地等;非建设用地15.40公顷,包含耕 地、园地、林地、陆地水域等


七、道路交通规划
1.对外交通 二环南路,城市快速路,宽80米,连通市区各区块; 鱼起路,城市主干路,宽40米,连通龙蟠单元及周边 区块; 勤廉街,城市次干路,宽30米,连通龙蟠单元各区 块; 雅姜路,城市支路,宽12米,连通龙蟠单元; 青帆街,城市支路,宽11米,连通龙蟠单元。
2.内部交通 规划形成方格子形的路网框架。 主干道:村庄内部主要道路,宽度5-8米之间,可满足 通车需求。 次干道:村庄内部次要道路,宽度4米之间,可满足通 车需求。 支 路:主要为住宅入户的道路,道路宽度1-3米。
3.静态交通 规划考虑该村用地紧张,在村庄北侧规划邻里中心区块 设置集中停车场,配置充电桩。此外,结合公共设施设置多 处相对分散的停车位,其余组团空间临时停放,标准按8车 位/百人配建。
八、主要配套设施
保留党群服务中心、居家养老服务中心、文化礼堂和龙蟠 徐氏祠堂4处公建;在村庄北侧,桐溪西岸规划1处邻里中 心,配置儿童老年人活动场地、室外健身器械、物业管理与服 务用房、生活垃圾集中投放点、再生资源回收点、公共厕所、 居民非机动车停车场(库)、居民机动车停车场(库)、快递 服务场所、便利店等。



声明:本站所有文章资源内容,如无特殊说明或标注,均为采集网络资源。如若本站内容侵犯了原著者的合法权益,可联系本站删除。
