8×15米自建房封神!现代改善型户型设计,每个空间都长在需求点上
8米×15米自建房封神!现代改善型户型设计,每个空间都长在需求点上
哲东自建房设计·第131期|自建房设计探索与分享
设计需求
占地:宽8米,深15米
现场条件:南侧为主要出入口,北侧靠近菜地,西侧为巷道,东侧为邻居
功能需求:3-4层,房间5-6个,顶层需要露台,客厅可以通高2层
首层:通高客厅+厨房+餐厅
二层:设置一间父母房
三层:主卧套房+2间次卧
四层:留一间套房+露台,预留好洗衣机及上下水点
外立面:现代风格

设计说明
首层:
结合现场条件,开门侧置,进门为玄关,方便更换鞋袜。进来一长排的柜子,用于展示主人的收纳藏品,并设置一台展示休闲用的钢琴。右手边为通高双层的大客厅,用于主人招待客人及形象展示,体现出主人的品味及大气。
首层中间为楼电梯,背后为厨房餐厅一体化设计。厨房为一个3.2x4.0的大厨房,中间带岛台,一是增加了厨房和餐厅的互动性,整体空间感也非常流畅大气。
厨房旁边设置有一个小茶桌,方便招待及等候。下次我会专门分享一下厨房的设置空间效果展示。

二层:
由于客厅的通高,二层北侧为一间带衣帽间及阳台的父母房,空间非常舒适。尤其是一个小阳台的设置,使人与自然有了更亲密的接触的可能。同时二层我们设置了一个兴趣藏品室,用于布置主人平时喜爱收集的手办、模型等。

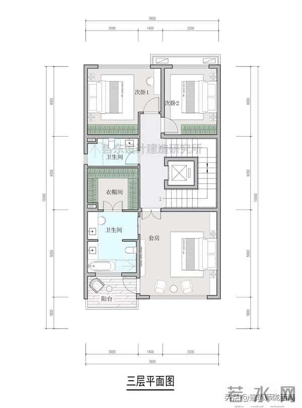
三层:
南侧为主卧套房,5.6x5.0米的超大主卧套房,卫生间带浴缸。主卧带一个宽阔透气的阳台,卫生间浴缸正对着阳台景观开窗。阳台的尺寸设计为可以布置休闲椅甚至躺椅的尺寸,供主人可以放松休息。北侧为两间可以布置下1.8米床的次卧。

四层为一套房式设计,南侧为露台空间,露台划分为两个分区,左侧为晾晒区,右侧通过景观分隔有休闲区。晾晒区与洗衣机布置一体化,并且考虑到大人小孩,预留了2个洗衣机位置。

整体设计比较改善舒适型,兼顾了招待用的双层通高大客厅,居住舒适的大主卧,以及洁污分区的露台空间。
外立面采用现代设计,白色乳胶漆+镂空方格+局部木纹铝板设计,现代造型,展示出整体的体块雕塑感。

声明:本站所有文章资源内容,如无特殊说明或标注,均为采集网络资源。如若本站内容侵犯了原著者的合法权益,可联系本站删除。
